Парцел за продажба в град Бяла

Парцел за продажба в град Бяла

Предлагаме Ви парцел с площ от 1328 кв.м. с ток, вода и мръсна канализация в близост до морския бряг на град Бяла.

Парцелът е разположен на 123 метра от бреговата ивица. 

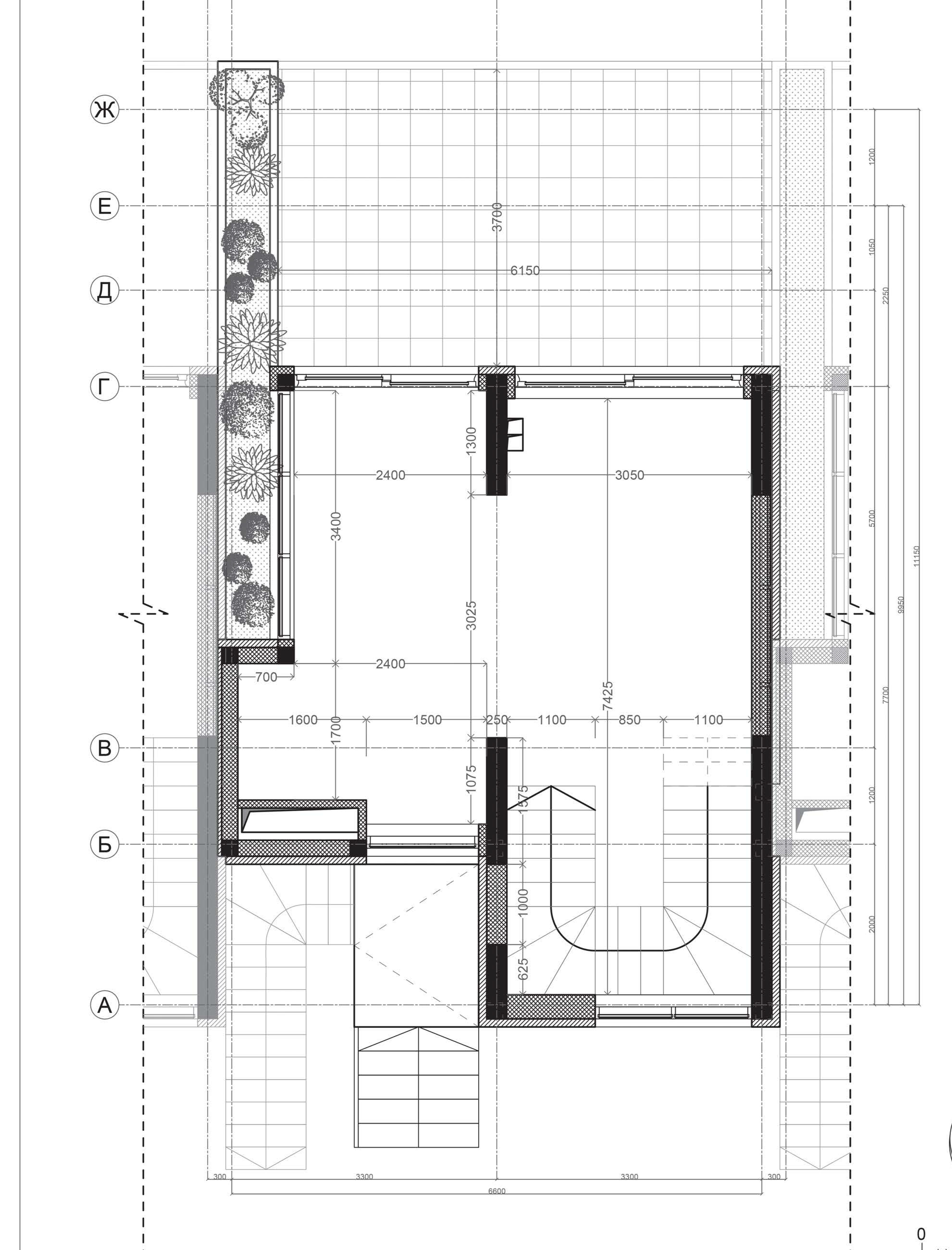
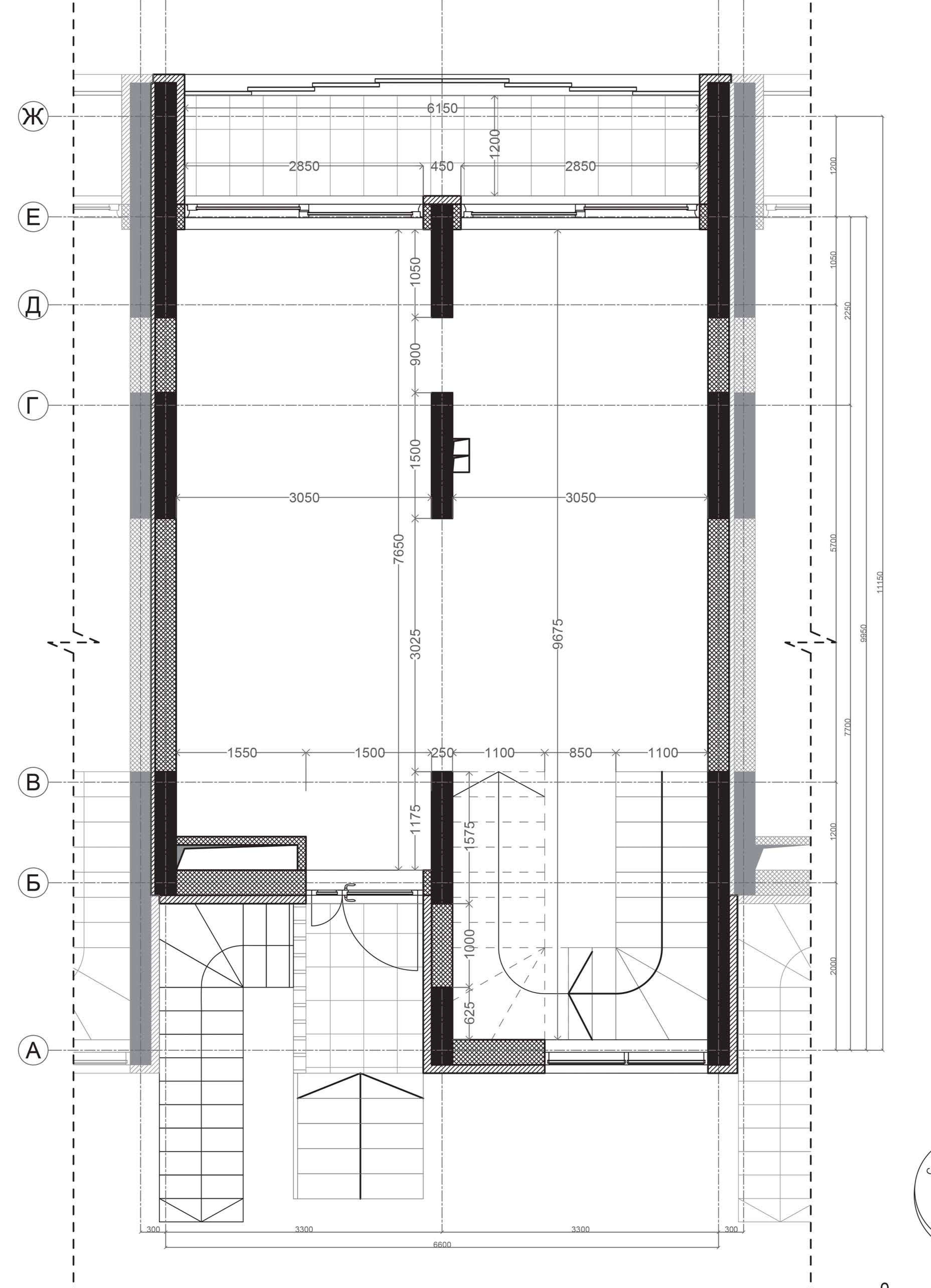
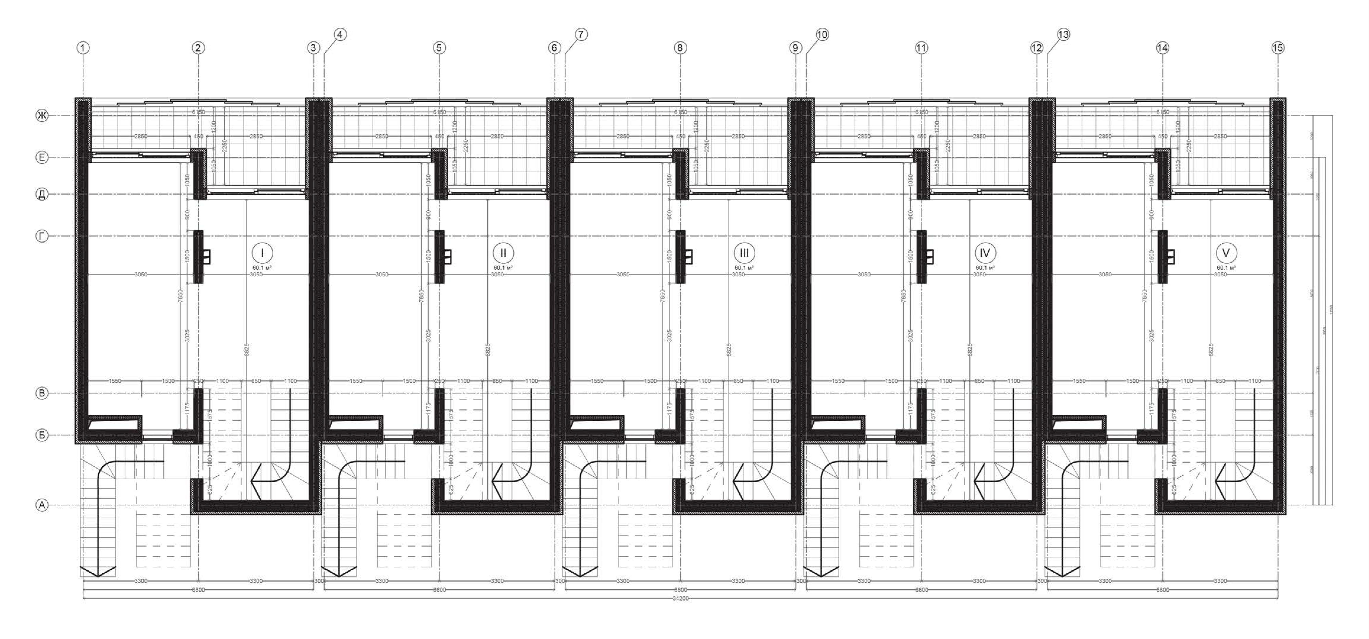
Парцелът е с разрешение за строеж на пет редови къщи с общо РЗП 1050 кв.м. РЗП на всяка от къщите 210,80 кв.м. Застроена  площ на една къща: 63,79 кв.

Парцелът е в непосредствена близост до плаж "Шами", който има "Син флаг" за 2025 г. Подходящо е за целогодишно живеене и нощувки. 

Парцелът позволява строителство 1050 кв.м. за пет редови къщи или четири самостоятелни.

Град Бяла е на 44 км от гр. Варна и предлага девствени плажове, чист въздух и спокойствие.

Възможно е и обезщетение.

виж повече
Цена € 195000.00

Детайли

#1531

Град Бяла

Квартал Бяла

Вид строителство Тухла

Етаж

Застроена площ 1050

Обща площ 1328

Тип Парцел

Зелени площи

Акцент Гледка към морето

Валентина Койчева

Брокер